Ulubione projekty
Twoja lista jest pusta
Dodano projekt
Usunięto projekt
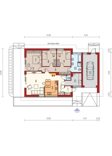
- Powierzchnia użytkowa 99.89 m²
- Dodatkowo:
- kotłownia 7.46 m²
- garaż 22.58 m²
- Powierzchnia zabudowy 172.59 m²
- Pow. netto 136.43 m²
- Kubatura 382.71 m³
- Wymiary budynku 16.84 × 10.84 m
- Wysokość budynku 6.95 m
- Kąt nachylenia dachu 30o
- Powierzchnia dachu 253 m²
- Minimalne wymiary działki 23.84 x 18.84 m
Cena projektu
3 600 pln
4 500 pln
- Katalogowa karta projektu (724 KB)
- Dawid G1 - charakterystyka energetyczna (wersja domu z wentylacją grawitacyjną)Budynek spełnia wymagania WT2021 (533 KB)
- Dawid G1 - charakterystyka energetyczna (wersja domu z wentylacją mechaniczną, rekuperacja)Budynek spełnia wymagania WT2021 (533 KB)
- Dawid G1 - materiały z projektu technicznego (822 KB)
- Dawid G1 - materiały z projektu technicznego (odbicie lustrzane) (785 KB)
Zadaj pytanie do projektu Dawid G1
Jesteś zainteresowany/a tym projektem? Architekt dyżurny przygotuje dla Ciebie materiały z projektu technicznego. Zostaw nam swoje dane, powiadomimy Cię, gdy pliki będą dostępne.
Zamawiając usługi forum i dzienników budowy, przyjmujesz do wiadomości i wyrażasz zgodę na świadczenie tych usług i przetwarzanie przez Usługodawcę, którym jest Pracownia Projektowa ARCHIPELAG A. Wójciak, R. Wójciak Sp. J., jako Administratora danych, podanych w formularzu danych osobowych, na zasadach wskazanych w Regulaminie i Polityce Prywatności serwisu ARCHIPELAG.pl.
Jeśli chcesz także otrzymywać bonusy i informacje dotyczące akcji promocyjnych naszych i naszych Partnerów, wyraź zgodę dodatkową i zaznacz odpowiednie pole. Wyrażam zgodę na przetwarzanie moich danych osobowych przez administratora, którym jest Pracownia Projektowa ARCHIPELAG A. Wójciak, R. Wójciak Sp. J. z siedzibą: ul. M. Smoluchowskiego 56/3, 50-372 Wrocław, nr KRS 0000123673, NIP: 897-16-05-744, REGON: 931987209:
Na podstawie art. 13 Rozporządzenia Parlamentu Europejskiego i Rady (UE) 2016/679 z dnia 27 kwietnia 2016 r. w sprawie ochrony osób fizycznych w związku z przetwarzaniem danych osobowych i w sprawie swobodnego przepływu takich danych oraz uchylenia dyrektywy 95/46/WE (RODO) informujemy Cię, że (przeczytaj klauzulę informacyjną):
czytaj całość ›Zużycie energii
Wskaźnik EP dla domu z wentylacją grawitacyjną (szczegółowe dane w charakterystyce energetycznej)
Pobierz charakterystykę energetyczną:
Wskaźnik EP określa roczne zapotrzebowanie domu na nieodnawialną energię pierwotną do ogrzewania, wentylacji oraz przygotowania ciepłej wody użytkowej.
Szacunkowy koszt budowy
| STANDARDOWE (uśrednione) [zł] |
||
|---|---|---|
| Stan surowy otwarty: | 177 359 (1) | |
| Stan surowy zamknięty: | 218 288 (1) | |
| Stan deweloperski: | 361 539 (1) | |
| Instalacje wewnętrzne: | 36 153 (1) | |
|
(1) Wyliczone według współczynników (2) Wyliczone według kosztorysu |
||
Opinia eksperta
Forum (2)
Ostatnie tematy:
- Budowa Dawid G1 [3] gość, 2018-08-16 15:40
- Czy ktoś buduje w... [0] gość, 2018-07-29 07:11
Dzienniki budowy
Archipelag dla Ciebie
Polecane technologie
Wypełnij formularz, skontaktujemy się z Tobą.
Zamawiając usługi forum i dzienników budowy, przyjmujesz do wiadomości i wyrażasz zgodę na świadczenie tych usług i przetwarzanie przez Usługodawcę, którym jest Pracownia Projektowa ARCHIPELAG A. Wójciak, R. Wójciak Sp. J., jako Administratora danych, podanych w formularzu danych osobowych, na zasadach wskazanych w Regulaminie i Polityce Prywatności serwisu ARCHIPELAG.pl.
Jeśli chcesz także otrzymywać bonusy i informacje dotyczące akcji promocyjnych naszych i naszych Partnerów, wyraź zgodę dodatkową i zaznacz odpowiednie pole. Wyrażam zgodę na przetwarzanie moich danych osobowych przez administratora, którym jest Pracownia Projektowa ARCHIPELAG A. Wójciak, R. Wójciak Sp. J. z siedzibą: ul. M. Smoluchowskiego 56/3, 50-372 Wrocław, nr KRS 0000123673, NIP: 897-16-05-744, REGON: 931987209:
Na podstawie art. 13 Rozporządzenia Parlamentu Europejskiego i Rady (UE) 2016/679 z dnia 27 kwietnia 2016 r. w sprawie ochrony osób fizycznych w związku z przetwarzaniem danych osobowych i w sprawie swobodnego przepływu takich danych oraz uchylenia dyrektywy 95/46/WE (RODO) informujemy Cię, że (przeczytaj klauzulę informacyjną):
czytaj całość ›




Garaż usytuowany w bryle budynku wymaga dobrej izolacji ścian i sufitu, które przylegają do części mieszkalnej oraz ciepłych drzwi łączących go z domem. Musimy ograniczyć też straty energii, do których dochodzi przez płytę bramy. Najlepszym rozwiązaniem będzie tu brama LPU 67 Thermo zbudowana z izolowanych termicznie segmentów o grubości 67 mm i wyposażona w podwójne uszczelki wargowe na ich łączeniach oraz w podwójną uszczelkę progową. Ucieczce ciepła z domu zapobiegną natomiast energooszczędne drzwi wejściowe Thermo 65. Te stalowe drzwi z płytą o grubości 65 mm wypełnioną pianką PU to nie tylko wysoka termoizolacyjność, ale też dobre wyposażenie przeciwwłamaniowe oraz bogaty wybór eleganckich wzorów.
czytaj więcej